


di Fabio Tornatore

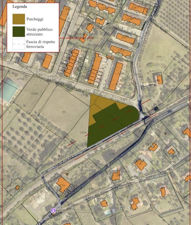
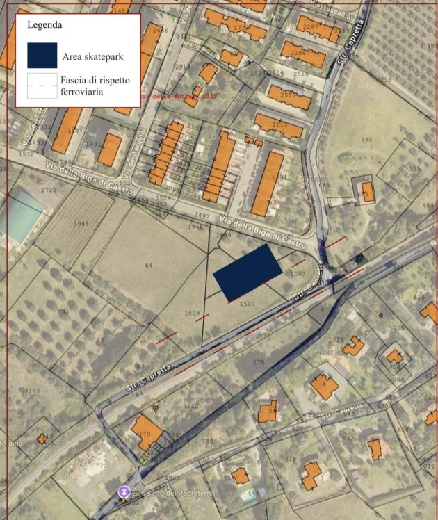
VITERBO - Cambio di destinazione d'uso a Santa Barbara per fare spazio allo Skate Park: la struttura, che doveva sorgere nel campo polivalente di via Dora Riparia come riqualificazione, è stata spostata all'incrocio tra via Biga di Castro e strada Capretta.

L'intervento, richiesto dalla stessa sindaca Chiara Frontini alla Presidente del Consiglio dei Ministri, ha ricevuto parere favorevole: le motivazioni che hanno portato allo spostamento della struttura risiedono nella 'maggiore integrazione con il polo sportivo cittadino: essa è situata in prossimità degli impianti sportivi già realizzati, favorendo una più efficace organizzazione delle attività e una migliore fruizione da parte degli utenti', oltre ciò, secondo il documento comunale, sarebbero presenti 'caratteristiche morfologiche equivalenti: il sito presenta caratteristiche geomorfologiche del tutto analoghe a quelle della precedente area, garantendo la piena compatibilità tecnica con il progetto dello skate park, attualmente in fase di ultimazione. Tale circostanza permette il trasferimento del progetto senza alcun ostacolo dal punto di vista progettuale e realizzativo'. Inoltre, 'l’area risulta certamente più adatta al tipo di intervento proposto garantendo una più semplice cantierizzazione, una minore incidenza di imprevisti in fase di realizzazione e tempi di realizzazione certamente più celeri, senza alcun costo aggiuntivo'.

Altre motivazioni che hanno portato al cambio di destinazione dell'intervento riguardano un contratto di gestione dell'attuale campo di basket che avrebbe dovuto ospitare lo skate park, impedendo i lavori; migliore sostenibilità urbanistica e ambientale; conformità urbanistica.
La realizzazione del nuovo skate park, che costerà 650 mila euro, aveva già subito un'altra variante, quella dei tempi, visto che la consegna è stata posticipata a ottobre 2026. La realizzazione della struttura è stata possibile grazie allo smantellamento di un altro progetto, quello dell'asilo nido comunale che sarebbe dovuto sorgere nell'area del Poggino. L'importo di 3 milioni di euro per realizzarlo sono stati suddivisi in diversi interventi, uno dei quali proprio la riqualificazione dell'area polivalente di via Dora Riparia, che avrebbe dovuto ospitare lo skate park, che ora invece andrà a Santa Barbara.